Features & Amenities

Interior

  • Other Interior Features

    Eat-in Kitchen, Ceiling Fan(s)

  • Total Bedrooms

    3

  • Bathrooms

    2

  • 1/2 Bathrooms

    1

  • Above Grade Finished Area

    1580.0

  • Basement YN

    YES

  • Cooling YN

    YES

  • Cooling

    Central Air, Ceiling Fan(s), Electric

  • Fireplace YN

    NO

  • Heating YN

    YES

  • Heating

    Electric, Heat Pump

  • Pet friendly

    N/A

Exterior

  • Garage

    Yes

  • Garage spaces

    1

  • Parking

    Garage Door Opener, Garage, Driveway, Attached

  • Pool

    Yes

  • Pool Features

    None

  • Waterfront YN

    NO

  • View

    Garden

Area & Lot

  • Lot Features

    Sloped, Level

  • Lot Size(acres)

    0.04

  • Property Type

    Residential

  • Property Sub Type

    Townhouse

  • Architectural Style

    Traditional

Price

  • Sales Price

    $289,900

  • Tax Amount

    3252.0

  • Sq. Footage

    2, 180

  • Price/SqFt

    $132

HOA

  • Association

    Yes

  • Association Fee

    $145

  • Association Fee Frequency

    Monthly

  • Association Fee Includes

    N/A

School District

  • Elementary School

    N/A

  • Middle School

    N/A

  • High School

    CEDAR CLIFF

Property Features

  • Accessibility Features

    Accessible Full Bath, Accessible Entrance, Grip-Accessible Features, Customized Wheelchair Accessible

  • Association Amenities

    Jogging Path

  • Foundation Details

    Other

  • Senior Community YN

    NO

  • Sewer

    Public Sewer

  • Tax Lot

    29

  • Water Source

    Public

Schedule a Showing

Showing scheduled successfully.

<
>
IN PERSON
VIA CHAT

What is 3 + 4 ?


Change time

Mortgage calculator

Estimate your monthly mortgage payment, including the principal and interest, property taxes, and HOA. Adjust the values to generate a more accurate rate.

Your payment

Principal and Interest:

$

Property taxes:

$

HOA fees:

$

Total loan payment:

$

Total interest amount:

$

Location

County

CUMBERLAND

Elementary School

Middle School

High School

CEDAR CLIFF

Listing Courtesy of Cathie Heika , Turn Key Realty Group

RealHub Information is provided exclusively for consumers' personal, non-commercial use, and it may not be used for any purpose other than to identify prospective properties consumers may be interested in purchasing. All information deemed reliable but not guaranteed and should be independently verified. All properties are subject to prior sale, change or withdrawal. RealHub website owner shall not be responsible for any typographical errors, misinformation, misprints and shall be held totally harmless.

Agent ChristyIssler

Broker | Owner

ChristyIssler

Call Christy today to schedule a private showing.


* Listings on this website come from the FMLS IDX Compilation and may be held by brokerage firms other than the owner of this website. The listing brokerage is identified in any listing details. Information is deemed reliable but is not guaranteed. If you believe any FMLS listing contains material that infringes your copyrighted work please click here to review our DMCA policy and learn how to submit a takedown request.© 2024 FMLS.
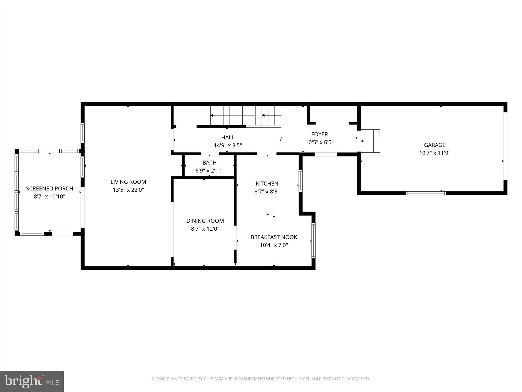
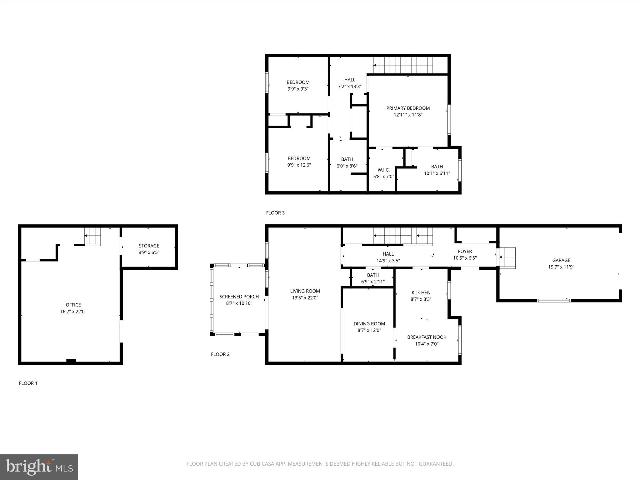
Welcome home to the Beacon Hill Community – Village of Maplewood! This lovely 2-story townhome offers 3 bedrooms, 2.5 baths, with about 2,180 square feet of comfortable, finished living space. Step inside from the private front entrance to a welcoming foyer that leads into a cozy kitchen with a breakfast nook and table space. The adjoining dining area is perfect for everyday meals or catching up with friends over dinner. The spacious living room opens directly to a screened porch — perfect for relaxing or dining outdoors. Upstairs, the primary bedroom suite features a walk-in closet and private bath with a walk-in shower and thoughtful mobility modifications. Two additional bedrooms, a full bath with a tub/shower combo and a conveniently located laundry closet (washer and dryer not included) complete the second floor. The finished lower level adds extra versatility — currently set up as a craft and office area with a small workshop space for hobbies or storage. Additional highlights include an electric heat pump for efficient heating and cooling, a 1-car garage and driveway parking for two vehicles. Enjoy easy living with a low $145/month HOA fee that covers snow removal and lawn care. There is a one-time $145 initiation fee for the buyer to join.

1402 RED MAPLE COURT

Message successfully sent.

What would you like to know?

What is 3 + 4 ?

Related Properties

Beautifully Remodeled Rancher in West Shore School District! This move-in ready home offers 3 bedrooms and 2 full baths, featuring fresh paint throughout and a fully finished lower level—perfect for extra living space, a home office, or a rec room. The updated kitchen boasts durable tile floors and plenty of space for cooking and entertaining. Retreat to the master suite, complete with its own private bath featuring elegant tile flooring and a tiled shower. Located in a desirable neighborhood, this charming ranch-style home combines comfort, convenience, and style. Don’t miss your chance to make it yours! Home inspection on file per request.
#PAYK2090484

NEW CUMBERLAND

465 PLEASANTVIEW ROAD

3 Beds

2 Baths

1,778 Sq.Ft.

$265,000

MLS#: PAYK2090484

Ready for its new owner, this home in West Shore School district has lots of space to make it your home.  Brick feature wall adds character and personality to the living room area.  The back yard has ample deck space and a fully fenced area to enjoy.  Great location with access to Route 83 and downtown New Cumberland.
#PACB2048010

NEW CUMBERLAND

413 16TH ST.

2 Beds

2 Baths

1,608 Sq.Ft.

$279,500

MLS#: PACB2048010

419 S 3rd Street- Discover this stunning new construction home - built/completed in 2025, where modern elegance meets comfort! With 4 spacious bedrooms and 2.5 baths, this residence boasts an open floor plan that seamlessly connects the family room and eat-in kitchen, perfect for gatherings. Enjoy the warmth of a brick fireplace and high end finishes throughout. The kitchen features an island and built-in appliances, making meal prep a delight! Step outside to a private rear fenced in yard, ideal for relaxation or entertaining. The exterior is enhanced with thoughtful lighting and sidewalks, promoting a welcoming atmosphere. Nestled in a vibrant community, this home is close to parks, schools, and essential public services, ensuring a fulfilling lifestyle. Experience the beauty of garden views and the charm of a friendly neighborhood. This property is not just a home; it's a lifestyle waiting for you to embrace. Don't miss your chance to make it yours!
#PACB2048008

NEW CUMBERLAND

419 3RD STREET

4 Beds

2 Baths

2,900 Sq.Ft.

$310,000

MLS#: PACB2048008

Move right into this beautifully updated modern ranch home featuring 2 bedrooms and 1 full bath. Situated on a spacious 0.82-acre lot, this property offers exceptional privacy while still being conveniently located just minutes from Route 83 and the PA Turnpike—making your commute quick and easy. Inside, you’ll find a spacious living room and an open kitchen layout with white cabinetry and stainless steel appliances. Recent updates include a new heat pump installed in 2024, a newer roof, and updated windows. The home features durable LVP flooring throughout. Enjoy the fully fenced backyard that backs to woods, plus a large 16 x 10 shed that offers plenty of additional storage space.
#PAYK2092866

NEW CUMBERLAND

464 MARSH RUN ROAD

2 Beds

1 Baths

1,080 Sq.Ft.

$265,000

MLS#: PAYK2092866

Welcome to Weatherstone, where comfort, convenience, and style come together. This beautifully maintained townhome offers a spacious and flexible layout designed for everyday living and effortless entertaining. The main level features a semi-open floor plan with both formal and casual dining spaces, perfect for gatherings large or small. Step out onto the private rear deck for morning coffee or unwind on the charming front porch.

Upstairs, the bedrooms are generously sized, and the laundry is located on the same level for added ease. A sunlit flex space near the stairway makes the ideal home office, study area, or creative nook. The finished lower level offers even more usable space—perfect for a second living area, gym, or hobby zone.

Enjoy the convenience of an attached garage and low-maintenance living with lawn care, snow removal, and common area upkeep included in the HOA. With quick access to I-83, the Turnpike, Capital City Airport, and local shopping and dining, this home is as practical as it is inviting.

No matter how you look at it, THIS IS HOME!!
#PAYK2086590

NEW CUMBERLAND

355 WEATHERSTONE DRIVE

3 Beds

2 Baths

2,477 Sq.Ft.

$299,000

MLS#: PAYK2086590

This charming home offers the perfect blend of comfort, convenience, and thoughtful updates throughout.
Step inside to find new carpet on the first floor, in the primary bedroom, and throughout the finished basement—creating a fresh, inviting feel. The kitchen features 2024 appliances, including an electric stove, refrigerator, and microwave—perfect for everyday cooking and entertaining.  Relax in the bright family room filled with natural light from the skylight, or unwind in the spacious primary suite, complete with a bath featuring dual shower heads. Enjoy the outdoors on the 10x10 deck (revamped in 2023) or the rear patio, ideal for gatherings or quiet evenings.  Additional highlights include a gas furnace, electric water system, and water softener for added comfort and efficiency. The HVAC system was replaced in 2023, and LeafGuard gutters are already in place for low maintenance.   When the owner purchased the property, this was a premium lot, as it extends beyond the wooded area all the way down to the rear road—offering one of the largest backyards in the neighborhood. The basement walls are poured concrete, providing strength and durability.
#PAYK2092300

NEW CUMBERLAND

240 RED HAVEN ROAD

3 Beds

2 Baths

2,557 Sq.Ft.

$340,000

MLS#: PAYK2092300

Enjoy ideal first-floor living with two bedrooms, a full bath, and laundry all on the main level. A cozy fireplace adds warmth and charm to the spacious living area. Upstairs, you’ll find two additional bedrooms and a second full bath, providing plenty of room to spread out.
The home has been freshly painted throughout and features brand-new carpet, updated kitchen cabinet doors, and new appliances. Major updates provide peace of mind, including:
New Roof (2025)
New A/C (2023)
Sewer Line Replacement (2021)
Radon Fan (2021)
Garbage Disposal (2024)
New Cooktop & Wall Oven (2025)
Outside, enjoy a large, level yard perfect for entertaining or play. The spacious carport doubles as a covered entertainment area and offers plenty of parking, plus there’s a shed for extra storage.

Located within walking distance to restaurants, shops, and the theatre—with easy access to major highways—this home combines small-town charm with modern convenience.

Back on the market due to buyer financing falling through—don’t miss your second chance!
#PACB2045428

NEW CUMBERLAND

337 EVERGREEN STREET

4 Beds

2 Baths

2,960 Sq.Ft.

$309,900

MLS#: PACB2045428

New Cumberland Craftsman three-bedroom brick two story with remodeled kitchen that features a commercial grade seamless stainless-steel counter and sink with stainless steel dishwasher, range and refrigerator. First floor half bath and laundry room that comes with washer and dryer. Spacious 19’ x 20’ step down family room with gas fireplace suitable to accommodate a pool table or huge flat screen TV for super bowl parties. Bar room located between kitchen and family room with bar top, closets and room for a kegerator, glass ware and second refrigerator. Formal dining room and living room with beautiful hardwood floors and crown molding. Stair case with wood pristine treads that lead to second floor with three bedrooms, remodeled full bath with tile walk in shower, glass shower door, vanity with marble top and LVP flooring.  Thermal replacement windows throughout most of the home, updated 100 Amp electric distribution box, newer architectural shingle roof, front porch for sitting out. Double tract rear yard that is partially fenced with custom privacy fence, storage shed and deep rear yard with room for recreation and a horse shoe pit. Economical natural gas heat with central air conditioning for year-round comfort. Great location with low traffic and quick easy access Camp Hill, Harrisburg or interstate highways. Very affordable, quate and move in ready! Easy to maintain exterior with super reasonable real estate taxes. Come see for yourself!
#PACB2045904

NEW CUMBERLAND

137 15TH STREET

3 Beds

1 Baths

1,570 Sq.Ft.

$264,900

MLS#: PACB2045904

205 OAK KNOLL RD, NEW CUMBERLAND, PA – MORE THAN A HOUSE, IT’S YOUR UPGRADE IN LIFE. STOP SCROLLING FOR “JUST ANOTHER” 3-BEDROOM HOME—BECAUSE THIS ONE IS DIFFERENT. AT OVER 1,900 SQUARE FEET, THIS HOME GIVES YOU SOMETHING RARE: ROOM TO BREATHE. WHETHER YOU NEED A HOME OFFICE, A PLAYROOM, OR SPACE TO FINALLY HOST FAMILY GATHERINGS WITHOUT CRAMMING INTO A CORNER, YOU’LL FIND IT HERE.

3 SPACIOUS BEDROOMS WHERE EVERYONE GETS REAL PRIVACY. 2 FULL BATHS, DESIGNED TO END THE MORNING TRAFFIC JAM ONCE AND FOR ALL. A LAYOUT THAT WORKS FOR TODAY’S LIFESTYLE—OPEN ENOUGH FOR CONNECTION, YET SMARTLY DIVIDED SO YOU CAN SHUT THE DOOR AND FOCUS WHEN NEEDED. AN OVERSIZED DRIVEWAY THAT ACTUALLY MAKES LIFE EASIER—NO MORE STRESSFUL BACKING INTO TRAFFIC. YOU’VE GOT SPACE TO COMFORTABLY TURN AROUND, PARK EXTRA VEHICLES, OR WELCOME GUESTS WITHOUT SHUFFLING CARS EVERY TIME SOMEONE NEEDS TO LEAVE.

THINK ABOUT WHAT THIS MEANS: NO MORE JUGGLING YOUR DAY AROUND A CRAMPED FLOORPLAN—OR A CRAMPED DRIVEWAY. NO MORE WISHING YOU HAD SPACE FOR A SECOND DESK, A HOBBY AREA, THAT OVERSIZED SECTIONAL YOU’VE BEEN EYEING, OR AN EASY WAY TO COME AND GO WITHOUT FRUSTRATION.

HERE’S THE REAL KICKER—MOST HOMES IN THIS PRICE RANGE IN NEW CUMBERLAND FORCE YOU TO COMPROMISE. TOO SMALL. TOO OUTDATED. TOO MANY REPAIRS. THIS ONE? IT’S THE UPGRADE YOU’VE BEEN WAITING FOR. IMAGINE WAKING UP TOMORROW KNOWING YOU FINALLY OWN A HOME THAT MAKES YOUR LIFE EASIER INSTEAD OF HARDER. THAT’S WHAT 205 OAK KNOLL DELIVERS.

BUT HERE’S THE TRUTH: HOMES LIKE THIS DON’T SIT ON THE MARKET. IF YOU’VE BEEN WAITING FOR A SIGN, THIS IS IT. SCHEDULE YOUR PRIVATE TOUR TODAY BEFORE SOMEONE ELSE CLAIMS IT.
#PAYK2090162

NEW CUMBERLAND

205 OAK KNOLL ROAD

3 Beds

2 Baths

1,912 Sq.Ft.

$300,000

MLS#: PAYK2090162

 - property

Send a message

Message successfully sent.

Your message

What is 3 + 4 ?

Reason for contacting?

Sign Out

Virtual Assistant

Would you like to take the next step with this property? We can help you schedule a showing or virtual tour, or send you more details.

Yes, I would like more information.

Thank You for Your Reply, One of Our Agents will contact you as soon as possible

No, maybe later.

Thank you, you can always contact me via email, phone number or through the contact form.

Realhub AI

Lucy - Your AI-Powered Realtor

Update Your Temporary Password

Personalize your search

Enter your email and we'll notify you immediately when new listings match what you're looking for.

or enter email address

Already have an account ? Login here

Continue your home search

Already have an account ? Login here