Property
Beds
3
Full Baths
2
1/2 Baths
None
Year Built
2025
Sq.Footage
1,584
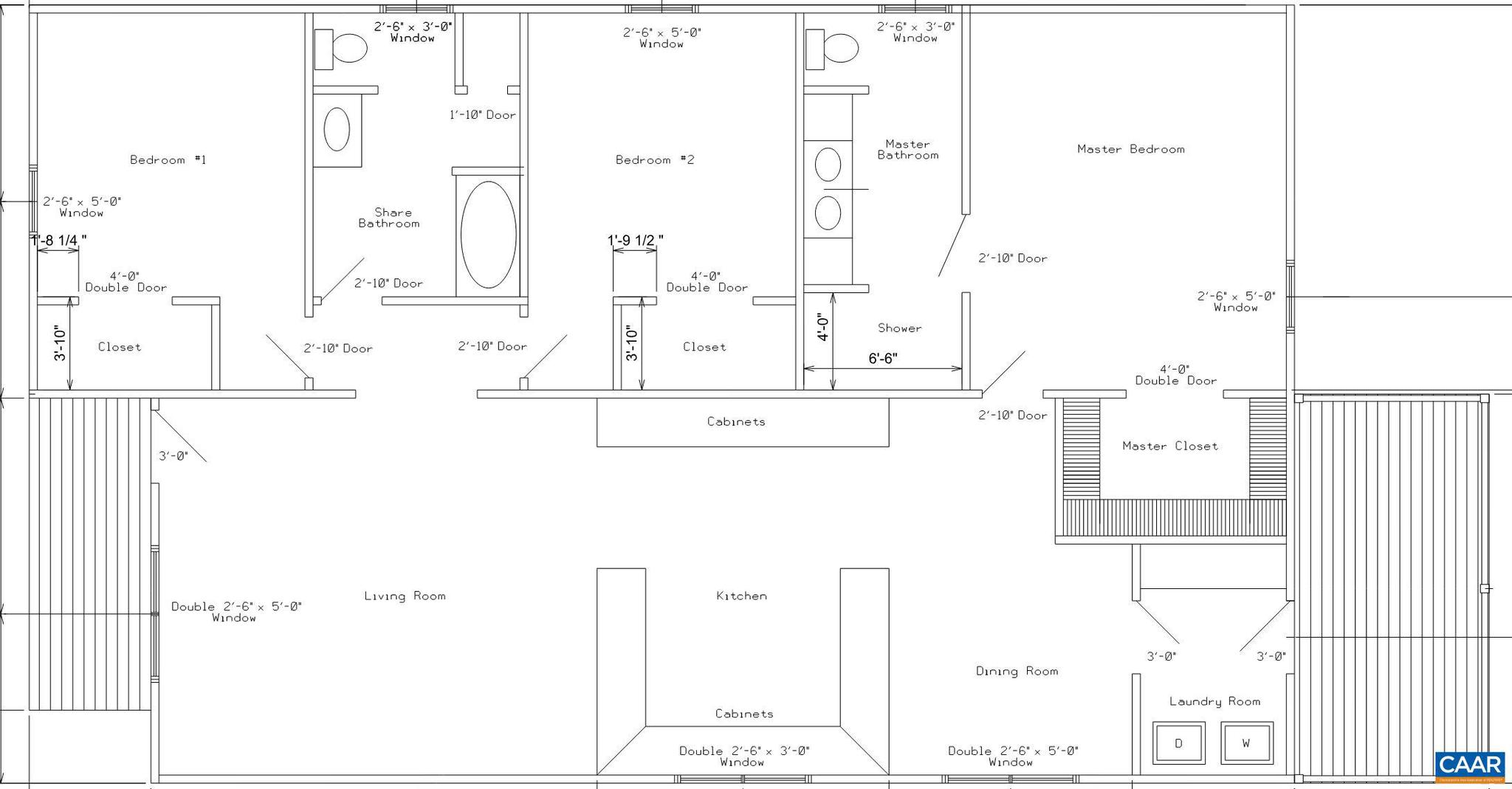
New construction! More pictures coming soon. Enjoy one-level living with this custom built home. Meticulously crafted, every detail has been thoughtfully planned with you in mind. This home features a warm and inviting flow for convenience and functionality. From the welcoming front porch, the open concept design in the main living space is great for entertaining and everyday living. The primary suite is located at the back of the home for privacy and tranquility, and features a generous-sized bathroom and walk-in closet. The kitchen features granite countertops and has an easy flow to the back deck for entertaining. The expected completion date for the home is 12/1/25. Conveniently located to Delphine Avenue, Rte. 250, downtown Waynesboro, and I-64, come see it today!,Granite Counter,Painted Cabinets
Features & Amenities
Interior
-
Total Bedrooms
3
-
Bathrooms
2
-
Above Grade Finished Area
1584.0
-
Basement YN
NO
-
Cooling YN
NO
-
Cooling
Heat Pump
-
Fireplace YN
NO
-
Heating YN
YES
-
Heating
Heat Pump
-
Main Level Bedrooms
3
-
Pet friendly
N/A
Exterior
-
Garage
No
-
Construction Materials
Vinyl Siding
-
Pool
No
-
View
Other
Area & Lot
-
Lot Features
Sloped
-
Lot Size(acres)
0.23
-
Property Type
Residential
-
Property Sub Type
Single Family Residence
-
Architectural Style
Other
Price
-
Sales Price
$325,000
-
Tax Amount
225.5
-
Zoning
General Residential
-
Sq. Footage
1, 584
-
Price/SqFt
$205
HOA
-
Association
No
School District
-
Elementary School
N/A
-
Middle School
N/A
-
High School
WAYNESBORO
Property Features
-
Foundation Details
Block
-
Sewer
Public Sewer
-
Water Source
Public
Schedule a Showing
Showing scheduled successfully.
Mortgage calculator
Estimate your monthly mortgage payment, including the principal and interest, property taxes, and HOA. Adjust the values to generate a more accurate rate.
Your payment
Principal and Interest:
$
Property taxes:
$
HOA fees:
$
Total loan payment:
$
Total interest amount:
$
Location
County
WAYNESBORO CITY
Elementary School
Middle School
High School
WAYNESBORO
Listing Courtesy of AMY HUGHES , AVENUE REALTY, LLC
RealHub Information is provided exclusively for consumers' personal, non-commercial use, and it may not be used for any purpose other than to identify prospective properties consumers may be interested in purchasing. All information deemed reliable but not guaranteed and should be independently verified. All properties are subject to prior sale, change or withdrawal. RealHub website owner shall not be responsible for any typographical errors, misinformation, misprints and shall be held totally harmless.
Broker | Owner
ChristyIssler
Call Christy today to schedule a private showing.
* Listings on this website come from the FMLS IDX Compilation and may be held by brokerage firms other than the owner of this website. The listing brokerage is identified in any listing details. Information is deemed reliable but is not guaranteed. If you believe any FMLS listing contains material that infringes your copyrighted work please click here to review our DMCA policy and learn how to submit a takedown request.© 2024 FMLS.